Centro Cívico-Cultural y Nuevo Aulario Lima
"Fomentar una relación dinámica entre lo público y lo privado"
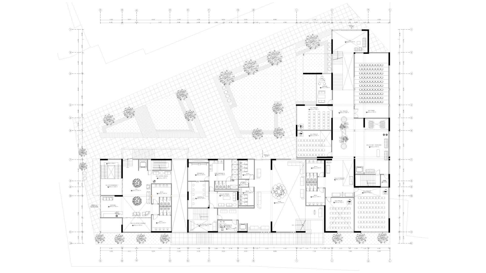
Este diseño se centra en la creación de un espacio público dinámico que interactúa armoniosamente con aulas educativas. El proyecto busca integrar un área abierta y accesible que funcione como núcleo central, y conecte directamente con las aulas circundantes. Se introdujo en un terreno libre con conexión a vías principales de la universidad, que facilita la flexibilidad necesaria para diferentes actividades educativas y comunitarias.
Además, se ha enfocado en la optimización de la circulación interna; con ello se asegura una conexión fluida entre los espacios públicos y las aulas. A través de la incorporación de espacios interiores y áreas de usos múltiples, se promueve un ambiente que invita a la interacción y al aprendizaje colaborativo.
La envolvente del edificio refleja el concepto de apertura y accesibilidad, utilizando un juego de volúmenes que enfatiza la profundidad y la proximidad con el entorno circundante. Este diseño no solo busca mejorar la funcionalidad del espacio educativo, sino también fomentar una relación dinámica entre lo público y lo privado; se enriquece así la experiencia de los usuarios y promueve la comunidad educativa en su conjunto.






