Centro de Interpretación de la Costa Peruana y Parque Temático para Niños

Luciana Soraluz
Vania Lanatta
2024
1
Verticales - Proyecto final
Taller 8
Nivel V
Espacio público, Cultural
Costa Verde, Bajada Brasil
22 000 m²
7516,8 m²

Centro de Interpretación de la Costa Peruana y Parque Temático para Niños

"Refleja la naturaleza de la costa verde a través de una volumetría triangulada"

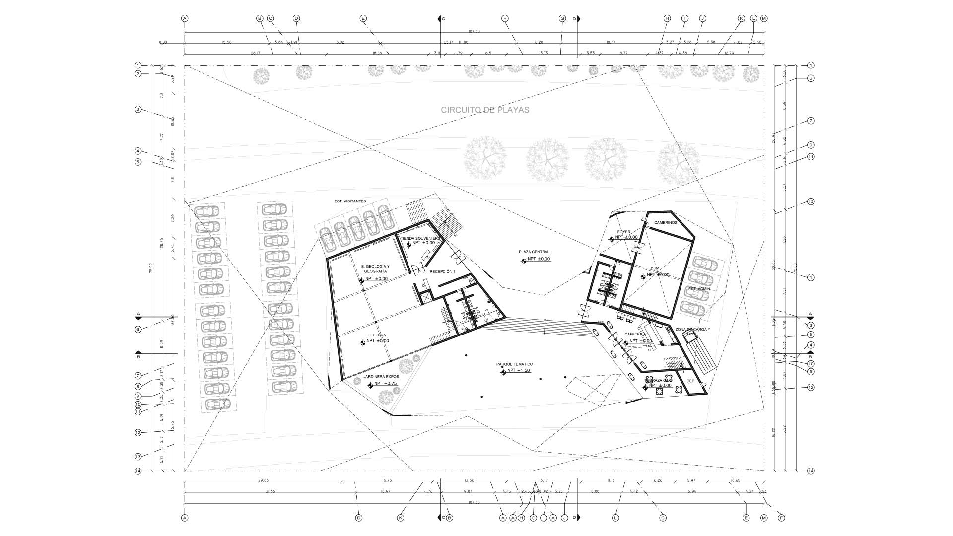
El centro de interpretación de la costa peruana para niños es un proyecto que se plasmó reflejando la naturaleza de la costa verde a través de una volumetría triangulada, revestida de vegetación hidropónica. En el interior del complejo se ordenó un programa cuya distribución fomenta el interés de los niños al aprendizaje y sensibilización de la naturaleza de la costa peruana, a través de recorridos fluidos, relaciones espaciales interesantes y visuales estratégicas según la temática de cada ambiente de exposición.

El proyecto organiza el flujo permanente al parque temático, el acceso al complejo en horario restringido y separa el recorrido del personal de servicios generales y abastecimiento a ambientes interiores como la cafetería.

 La cobertura y fachada del proyecto, hechos de perfiles metálicos y paneles, además de proteger los ambientes interiores de la brisa y el clima, proveen distintas permeabilidades que cuidan la relación entre los espacios interiores y el parque exterior.

El parque temático cuenta con un anfiteatro, vegetación nativa, caminos y espacios diseñados para la escala de los niños, incluyendo estancias modulares que poseen una estructura que permite el juego, el descanso en sombra y el monitoreo permanente de los acompañantes a los niños.

Peso

1.2 kg

Dimensiones

45 x 30 x 130 cm

aaaaa

aaaaaa