Centro deportivo y hospedaje para deportistas

Maria Fernanda Rojas Solis
Carlos Federico Dunkelberg Ramos
2024
1
Verticales - Proyecto final
Taller 1
Nivel IX
Uso Mixto, Equipamiento Urbano
Chorrillos, Lima, Perú
5037,80 m²
23 197,40 m²

Centro deportivo y hospedaje para deportistas

"Se eleva una gran plataforma semisuspendida en forma de aro"

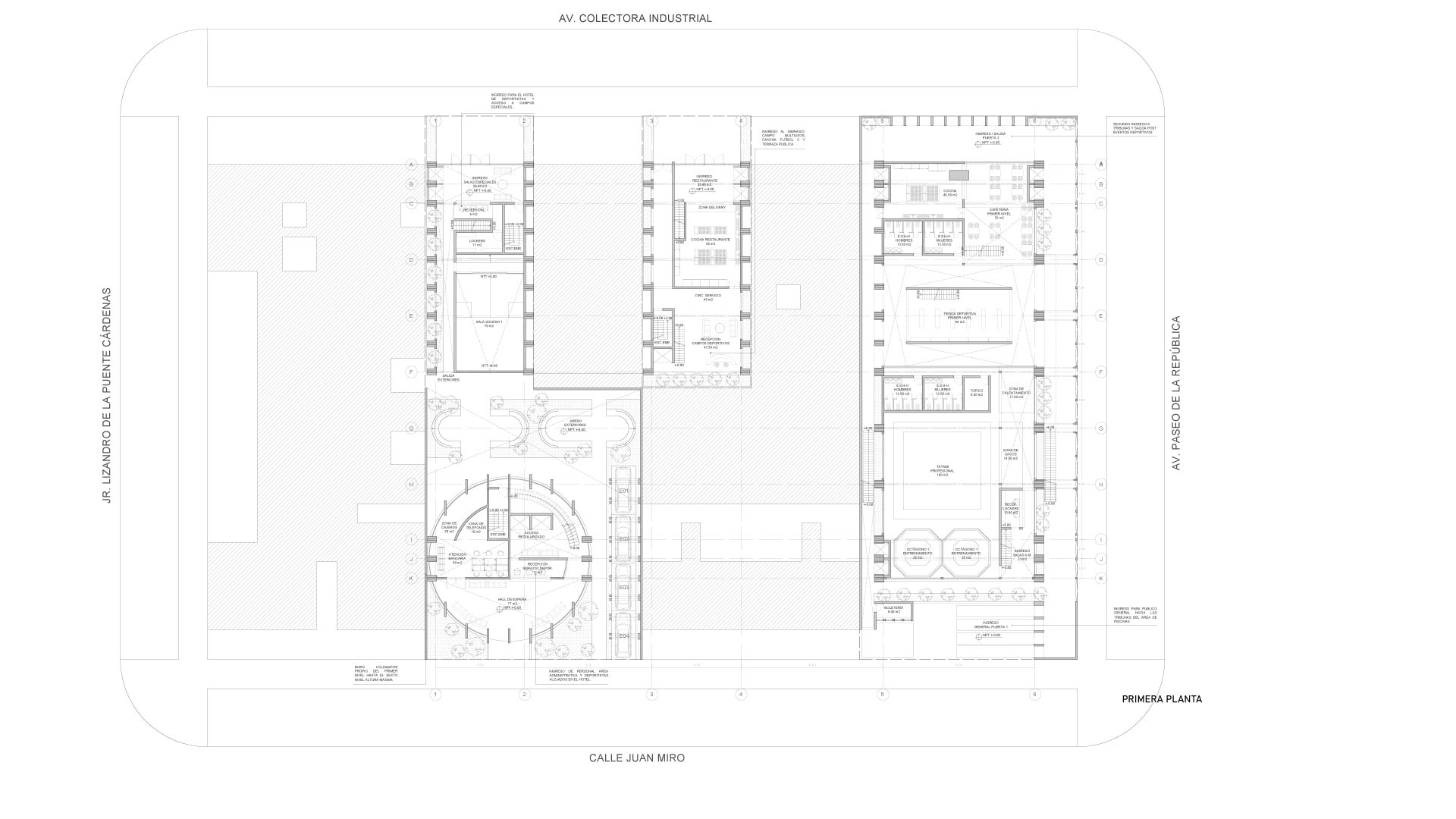
El proyecto Centro Deportivo y Hospedaje para Deportistas se emplaza en el distrito de Chorrillos, cerca de la estación Matellini del Metropolitano de Lima (av. Paseo de la República). Se integra al respetar las preexistencias, de modo que garantiza que no se obstruya el paso de la luz a los edificios ya existentes. La distribución de los lotes y los espacios aéreos se usaron libremente, lo que permite un diseño más vertical.

Además, contiene un programa denso en la parte superior, con campos deportivos multiusos y de fútbol, así como una pista de atletismo. Se eleva una gran plataforma semisuspendida en forma de aro, de dos niveles que contiene al hotel para deportistas, con habitaciones que maximizan las vistas y la privacidad.

El edificio con planta circular alberga los espacios administrativos y servicios de rehabilitación, lo que brinda un acceso privado. En la otra sección, se ubican dos edificios verticales de forma similar, que contienen salas para deportes especiales y otros servicios abiertos al público.

El espacio predominante del proyecto es un imponente volumen que acoge una piscina semiolímpica y de clavados, destacada por su tribuna. En la planta baja, se encuentran áreas de entrenamiento y servicios complementarios, como cafeterías y tiendas para los asistentes y competidores.

Peso

1.2 kg

Dimensiones

45 x 30 x 130 cm

aaaaa

aaaaaa