Conjunto Residencial Puente Piedra
"Solución habitacional que busca integrarse con el contexto social y urbano del barrio"
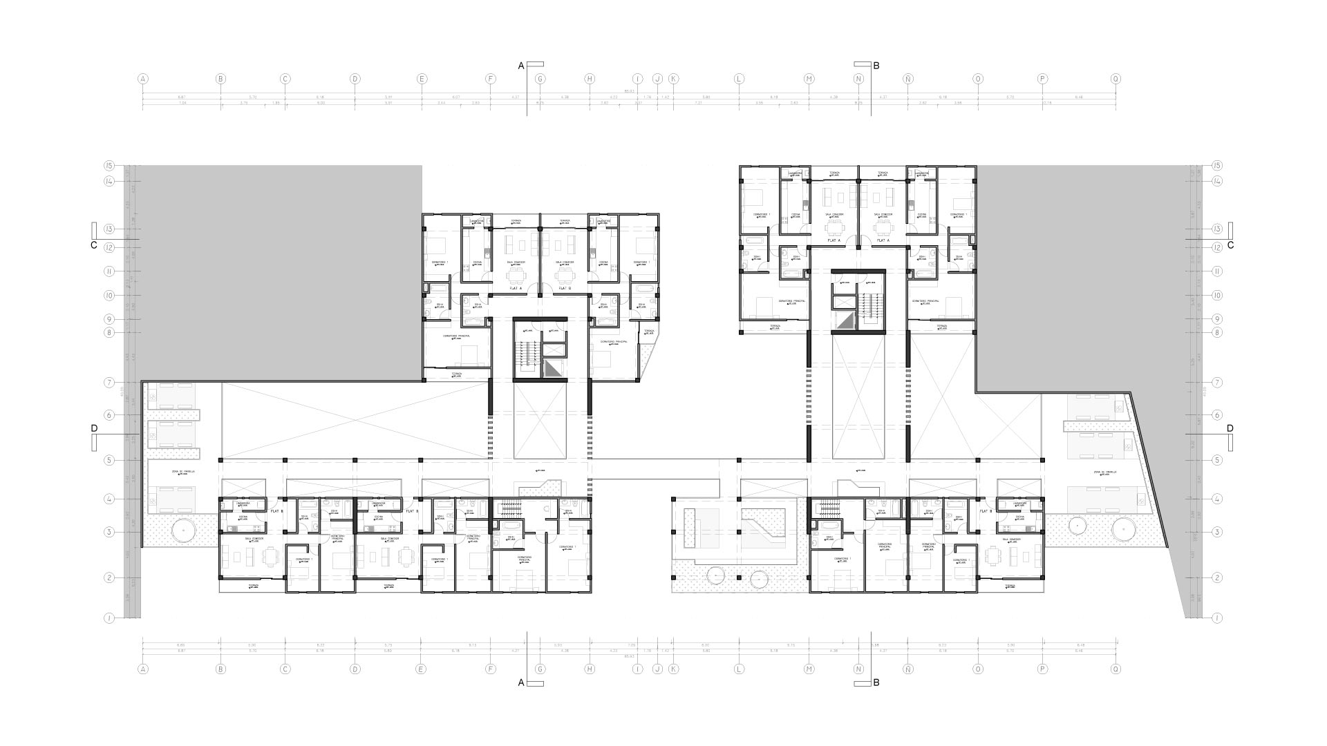
El conjunto residencial Puente Piedra se proyecta como una solución habitacional que busca integrarse con el contexto social y urbano del barrio. Ubicado entre dos vías públicas, la comercial avenida Copacabana y la calle El Magnolio, el proyecto cumple el objetivo de mejorar la calidad de vida tanto de los residentes como de los barrios vecinos. Esto se logrará mediante la expansión del comercio local, facilitada por un gran espacio público que surge del quiebre en el diseño del proyecto.
Este espacio conecta las dos vías, además de servir como un enlace comercial y social. El conjunto residencial está compuesto por dos torres que se unen mediante un puente en varios pisos. Con un máximo de 6 pisos y 38 departamentos, ofrece 6 tipologías diferentes, desde flats hasta dúplex y tríplex, además de áreas comunes que fomentan la interacción social entre los residentes.






