El Habitante y La Vivienda - Barrio
"Minimizar los recorridos y asegurar que sean útiles"
El proyecto inició con el análisis de varios sectores en Chancay, debido a que esta ciudad se encuentra en expansión por la intervención en su puerto y alrededores. De todos los sectores analizados, se eligió uno y se seleccionó un terreno. En este, se realizó el aporte a la ciudad, al diseñar un complejo de viviendas que se adapten a las necesidades y preferencias de adultos mayores con dificultad de movilidad. Para entender las características físicas y preferencias del habitante, se seleccionó a un adulto mayor cercano.
Se creó una planta en su cocina y se grabó un video, así se comprendió su antropometría y capacidades físicas. Por otro lado, se entrevistó al habitante para saber si estaba de acuerdo con las características de su cocina y, de no ser así, identificar el motivo. Una vez comprendidas las limitaciones físicas del habitante y sus preferencias, se aplicó esta información en el diseño de una cocina que fuera cómoda para él.
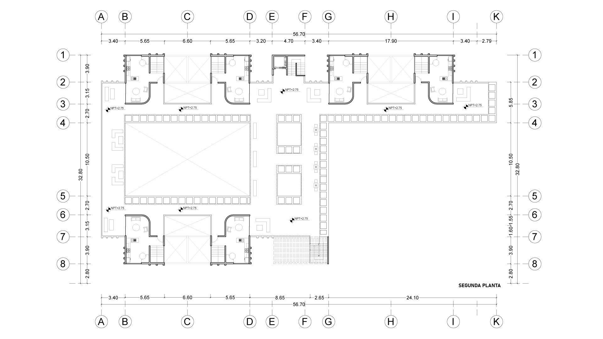
Además, se diseñó un flat y un dúplex, que luego se unieron con otros dos iguales, de modo que se generó un bloque con cuatro unidades de vivienda (dos flats y dos dúplex). Por último, se distribuyeron tres de estos bloques en el terreno, de manera que las áreas libres fueran aprovechadas para generar espacios comunitarios. Estos espacios también cumplen con las necesidades del habitante, tanto en su composición como en su ubicación, para minimizar los recorridos y asegurar que sean útiles y aprovechables por la comunidad.






