Espacio 30x30
"La iluminación natural destaca la conexión con el parque"
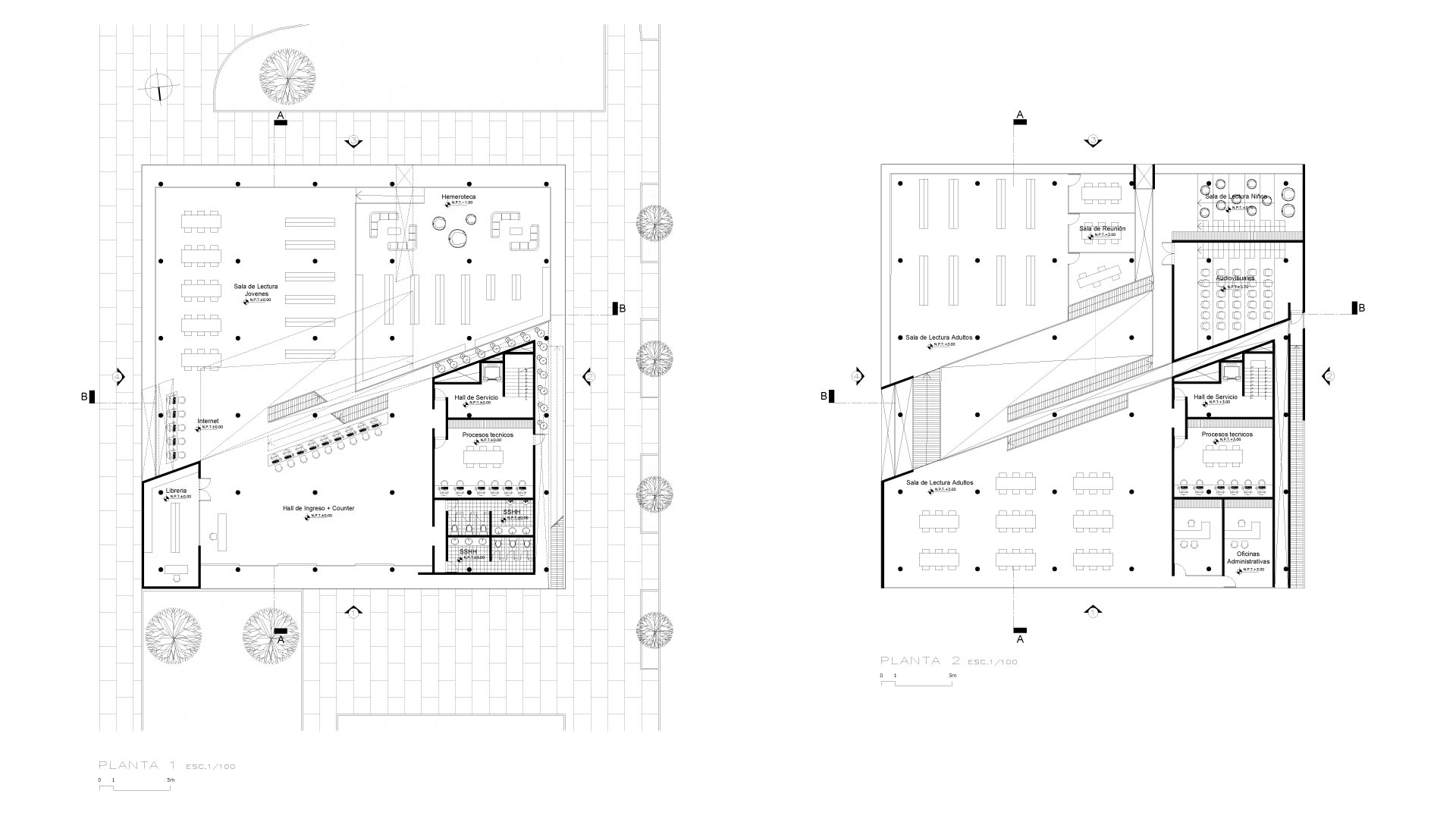
El espacio 30 x 30 es una mediateca que está ubicada en la calle La República 455, San Isidro, específicamente donde se encuentra la Biblioteca Municipal de San Isidro. El proyecto está sostenido por 36 pilotes, los cuales forman una planta libre y lo que busca es responder a las necesidades de las personas a través de una mediateca con distintas áreas específicas.
En la planta −1 se ubica la hemeroteca; en la planta 1, los espacios de sala de jóvenes, internet, hall de ingreso y counter, librería y núcleo de baños; en la planta 2, los espacios de sala de lectura adultos y niños, audiovisuales, oficinas administrativas y salas de reunión.
Los espacios del hall de servicio y procesos técnicos están distribuidos en las plantas 1 y 2 para una mayor eficiencia en la distribución y aprovechar el metro cuadrado de cada espacio del proyecto.
El proyecto cuenta con amplia iluminación natural en la mayoría de los espacios que requieren de una buena iluminación, como las salas de lecturas. Esto se logra gracias a los vidrios que permiten iluminación, permeabilidad y visuales alrededor del parque El Olivar.







