Casa dominó
"Preservar y continuar el legado del arquitecto Emilio Soyer Nash"
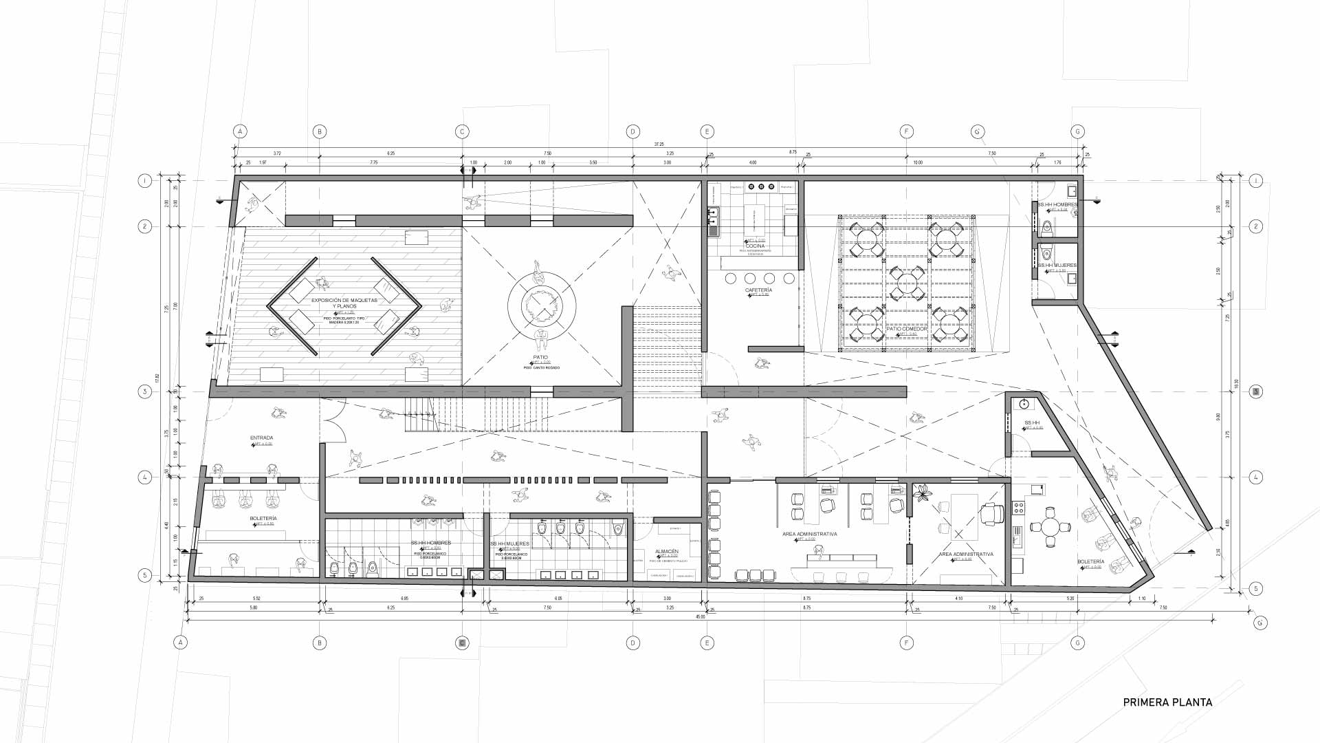
Ubicado en el distrito histórico de Barranco, el proyecto Fundación Emilio Soyer Nash se emplaza en un terreno de 730 metros cuadrados, caracterizado por su proximidad a calles tradicionales y su entorno de tipología arquitectónica antigua. Este contexto enriquece la propuesta, lo que genera un diálogo entre el edificio y su entorno barranquino.
El objetivo del edificio es preservar y continuar el legado del arquitecto Emilio Soyer Nash. Sus espacios están programados para actividades de trabajo y producción, áreas de investigación para explorar sus archivos y zonas expositivas dedicadas a maquetas, planos y obras del arquitecto. La distribución interna se centra en la composición de ambientes funcionales con relaciones fluidas entre los distintos usos, lo que enfatiza la experiencia del usuario.
La propuesta respeta el carácter histórico de Barranco mediante un diseño que incorpora elementos contemporáneos integrados a la escala y el lenguaje arquitectónico del entorno. Se busca no solo funcionalidad, sino también una conexión sensorial con el entorno mediante el uso de luz natural y volúmenes que remiten a la tipología tradicional del distrito. Este enfoque arquitectónico garantiza una relación armónica entre pasado y presente.






