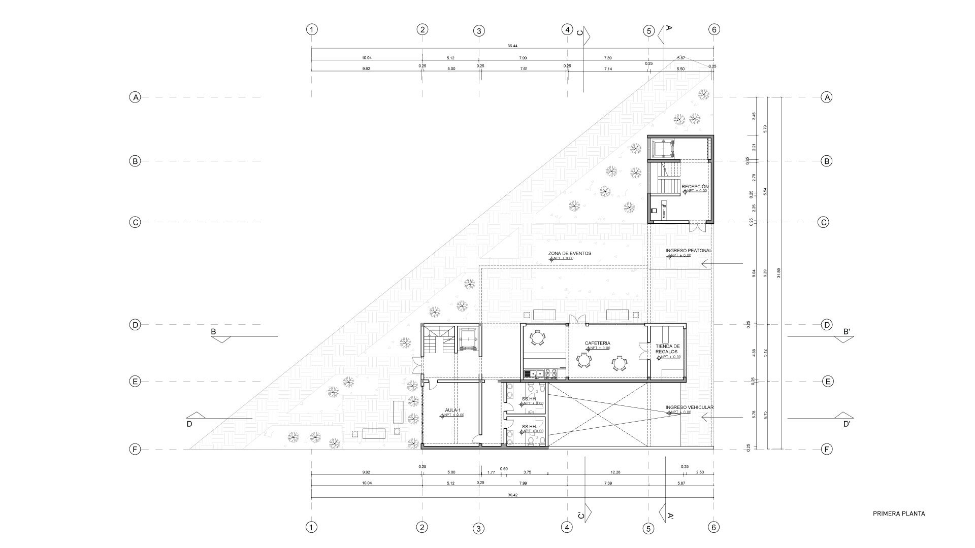
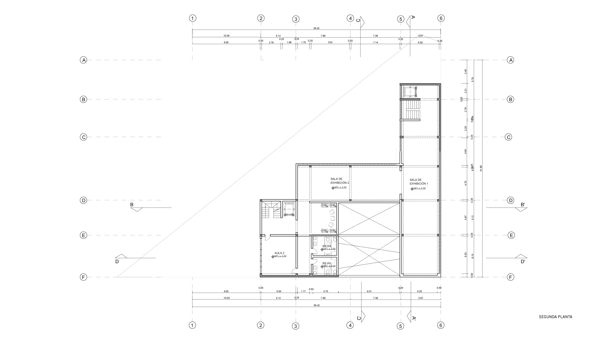
Galeria de Arte Barranquina
"Entre lo patrimonial y lo contemporáneo, el arte encuentra su lugar"
Inspirada en la arquitectura monumental barranquina, la galería de arte se integra al tejido urbano. Al tener en cuenta el entorno histórico del distrito en el que se encuentra, se responde a las características de escala, ritmo y espacialidad, las cuales se ven principalmente en la fachada, de modo que brindan una fluidez visual, que conecta la galería con las edificaciones aledañas.
Su diseño volumétrico genera un espacio público que, al fluir con el entorno, invita a los visitantes a explorar y disfrutar del arte en un contexto dinámico que fluye a través de los espacios virtuales creados por estas mismas volumetrías que se abren y conectan el paso peatonal con la edificación.






