Muso De Artes Visuales

Polly Barrueto Gutiérrez
Juan Carlos Doblado Tosio
2024
1
Verticales - Proyecto final
Taller 6
Nivel IX
Cultural, Educativo, Espacio Público
San Borja, Lima, Perú
2 688 m²
21 504 m²

Muso De Artes Visuales

"La circulación jerárquica conecta el museo a través de una rampa"

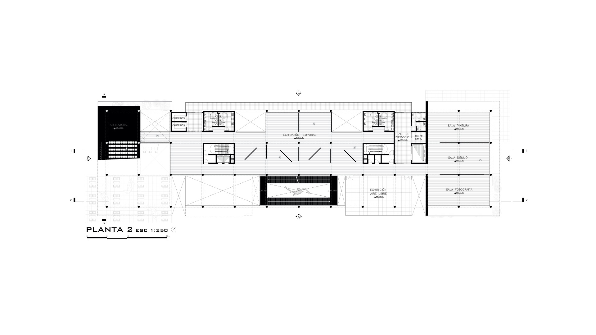
El Museo de Artes Visuales, al ser de tipología cultural —específicamente, museo—, debía tener en consideración la distribución del espacio al interior, pues se desarrollan diversas actividades en simultáneo, pero de manera independiente. Por ello, se ejecutaron zonas clave: público de no colección, público de colección, privado de colección y privado de no colección. Asimismo, se contaba con un terreno específico, ubicado en la avenida De La Poesía con Javier Prado, lo cual significó planificar y ejecutar dos fachadas principales y dos secundarias, que a su vez independizaban las zonas de servicio de las públicas. Otro de los puntos más importantes a tener en consideración para la propuesta fue el movimiento y desplazamiento de los usuarios al interior y exterior del museo.

Se debía poder ingresar a ciertas instalaciones del museo (patio inglés con aulas y talleres) desde afuera y adentro. Asimismo, se analizó cómo estas deben distribuirse en la tipología de edificio, lo que limita un área reducida a la parte organizacional (cerrada privada) y deja hacia las fachadas principales la circulación jerárquica, que estaría ubicada en la parte central de la edificación, la cual es una rampa, con el fin de generar la tan conocida promenade architecturale.

Peso

1.2 kg

Dimensiones

45 x 30 x 130 cm

aaaaa

aaaaaa