Residencia - Bar
"Se sustraen estratégicamente partes centrales del volumen en cada unidad de vivienda para generar grandes terrazas"
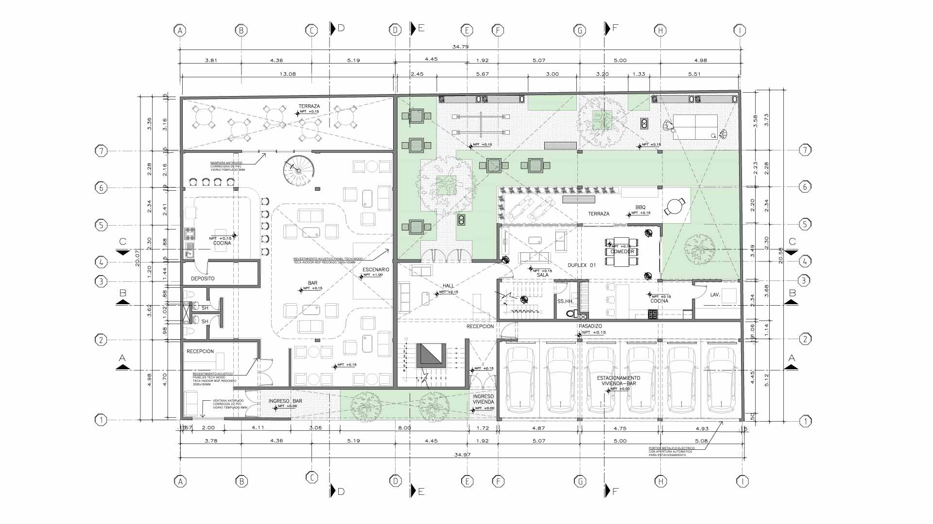
El proyecto Residencia-Bar está ubicado en el exterior de la manzana del antiguo canódromo, exactamente en la calle José Diaz en el Cercado de Lima. La propuesta se ubica en un terreno medianero y aplomado, que abarcó dos lotes juntos con un área total de 708.90 m². Está conformada por 4 unidades de vivienda (dos dúplex y dos flat), y un bar con una altura de 4 pisos como máximo y un 40 % de área libre.
El diseño parte de la idea de incluir una fachada ciega debido a su ubicación frente al Estadio Nacional, el cual sirve como protector acústico y genera mayor privacidad para las unidades de vivienda, teniendo en cuenta los parámetros establecidos.
A partir de esta fachada, se plantea la distribución interior, en la cual se sustraen estratégicamente partes centrales del volumen en cada unidad de vivienda para generar grandes terrazas-jardines que aseguran una mejor ventilación e ingreso de luz natural en cada ambiente sin necesidad de abrir tanto la fachada posterior para evitar exponer a las viviendas del ruido del bar. Así mismo, se sustrae el volumen de forma escalonada en la parte posterior para generar un área social compartida para todos los residentes; se crea asi un espacio de convivencia colectiva.






