Vivienda Colectiva en Chorrillos
"Integra espacios comerciales y residenciales en un entorno urbano consolidado"
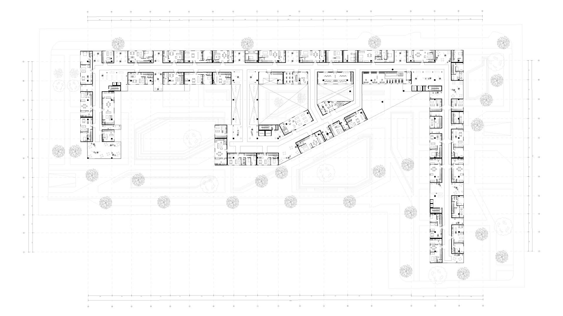
Ubicado sobre el eje de la avenida Huaylas en Chorrillos, este proyecto de vivienda colectiva abarca dos manzanas en forma de L, e integra espacios comerciales y residenciales en un entorno urbano consolidado. Los dos primeros niveles se destinan a comercios que activan la calle y crean un entorno vibrante para la comunidad, mientras que los niveles superiores albergan unidades residenciales de 60, 90 y 120 metros cuadrados, de manera que ofrecen vistas despejadas y protección contra los vientos directos.
El diseño multifuncional enfatiza la verticalidad, genera conexiones horizontales y crea diversos momentos y centralidades. La planta baja cuenta con espacios intermedios, plazas en diferentes niveles y áreas de sombra, que respetan la escala y proporcionan diversas sensaciones a los usuarios. Esta disposición permite una relación física con la zona comercial y una conexión visual con la zona residencial.
Cada módulo de vivienda está diseñado para maximizar la calidad de vida de los residentes, con espacios luminosos y bien ventilados. La combinación de comercio y vivienda no solo satisface las necesidades diarias, sino que también fomenta un sentido de comunidad y dinamismo que enriquece el tejido urbano de Chorrillos.





