Vivienda colectiva en Jesus Maria
"El volumen nace de la interacción con el entorno urbano"
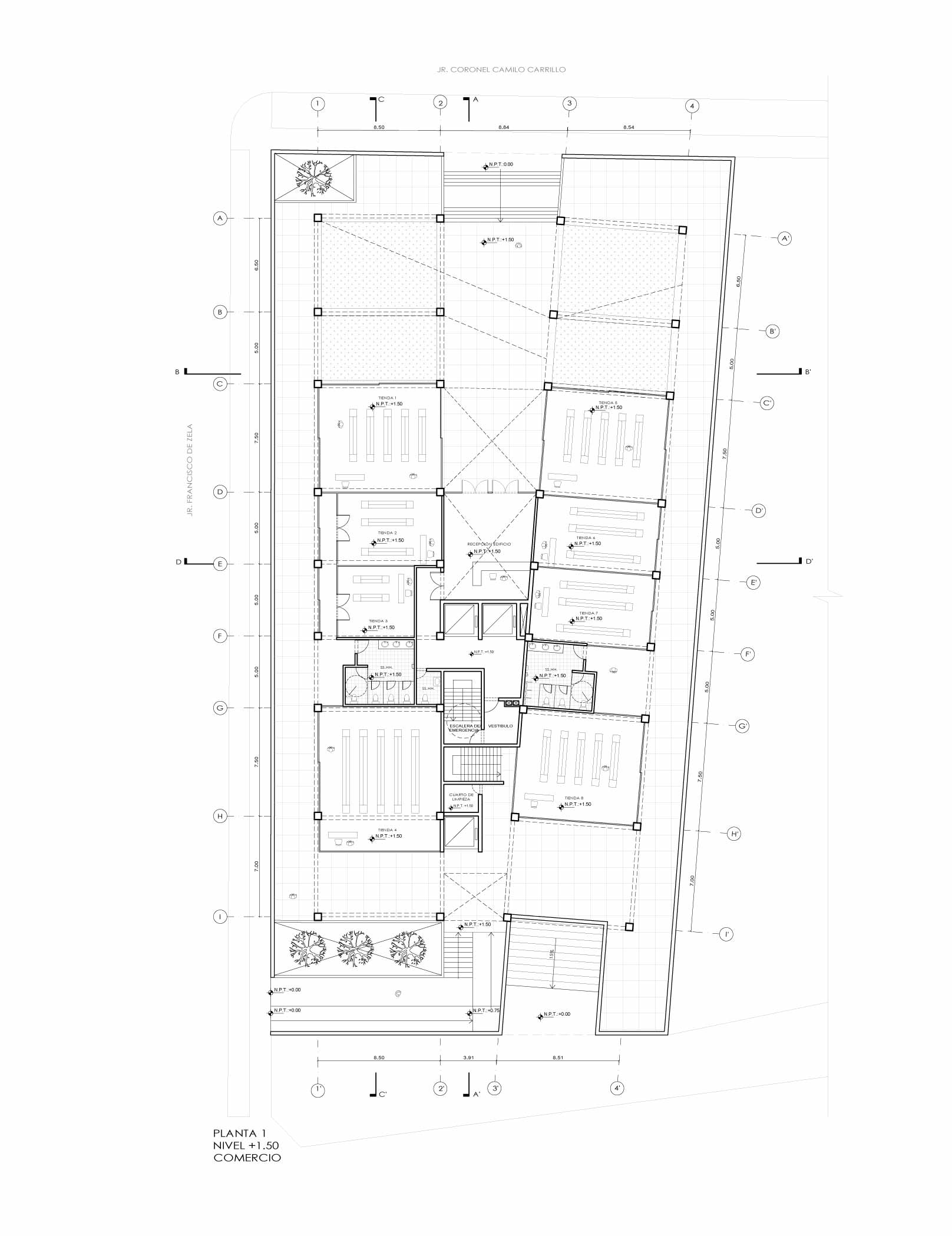
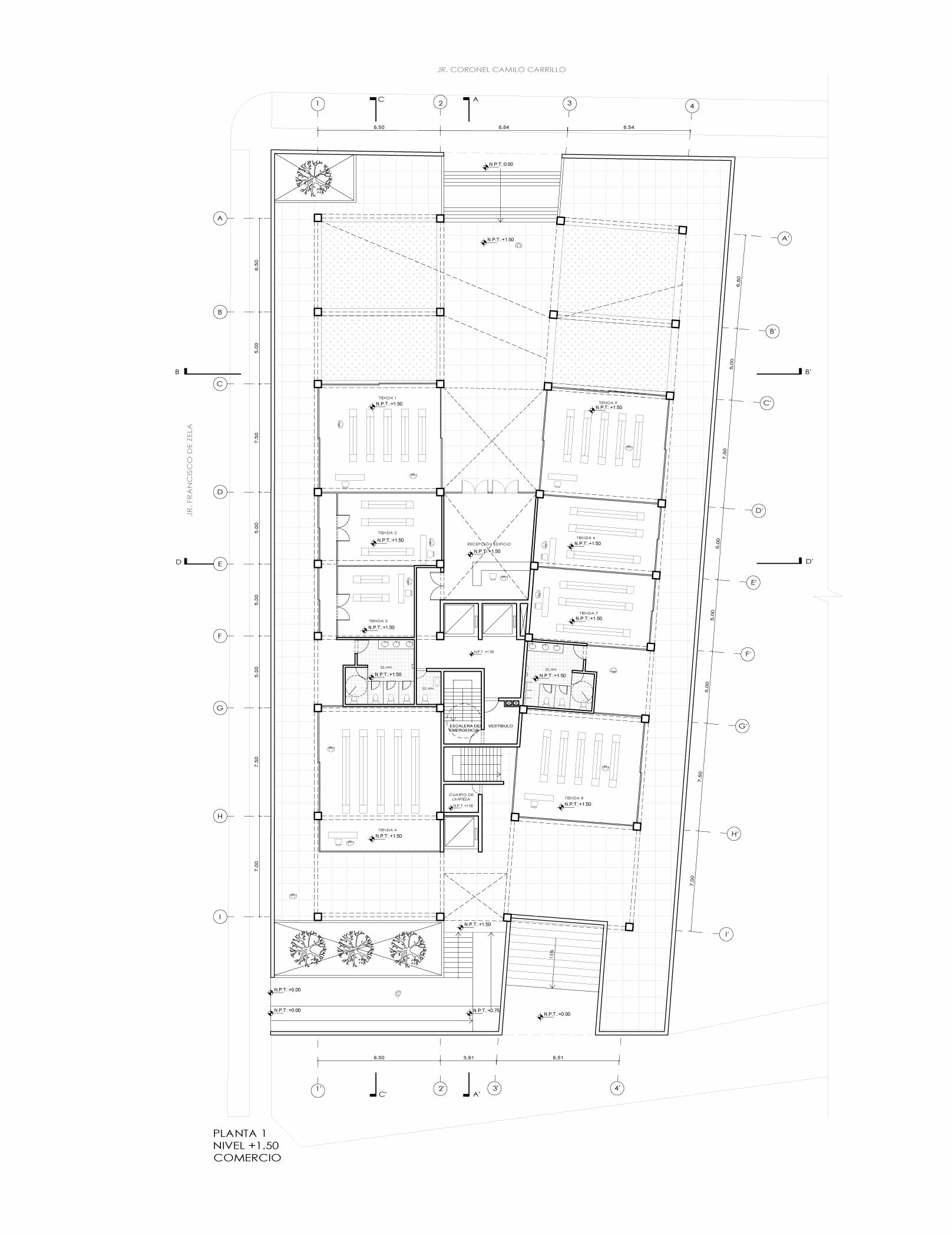
El proyecto se trata de un edificio multifamiliar con una propuesta de zócalo comercial permeable en los primeros dos pisos, y espacios semipúblico y semiprivado en el tercero. Este se ubica en el distrito de Jesús María, frente al Parque Polonia y el edificio del Ministerio de Salud.
El edificio cuenta con 50 departamentos, que pueden ser de tipo flat, dúplex y tríplex. Hay 10 departamentos de 60 m² con dos dormitorios, 15 de 80 m² con dos dormitorios y 25 de 100 m² con tres dormitorios. El volumen nace de la interacción con el entorno urbano, que tiene dos volúmenes, uno recto y uno inclinado hacia el parque, ambos con balcones angulares que enmarcan las visuales del área verde del entorno.
Estos surgen de un vacío central conectado por puentes y el núcleo de circulación del proyecto, en los cuales mediante retranqueos y sustracción de masa como estrategias proyectuales, se logran ingresos de luz y ventilación hacia los departamentos, al igual que espacios intermedios semipúblicos.








