Vivienda de Densidad baja

Leandro Lung Isidro
Angela Sofia Gutierrez Torres
2024
1
Verticales - Proyecto final
Taller 10
Nivel IV
Residencial
Barranco, Lima, Peru
2009 m²
704 m²

Vivienda de Densidad baja

"Flexibilidad y adaptabilidad al servicio de cada usuario"

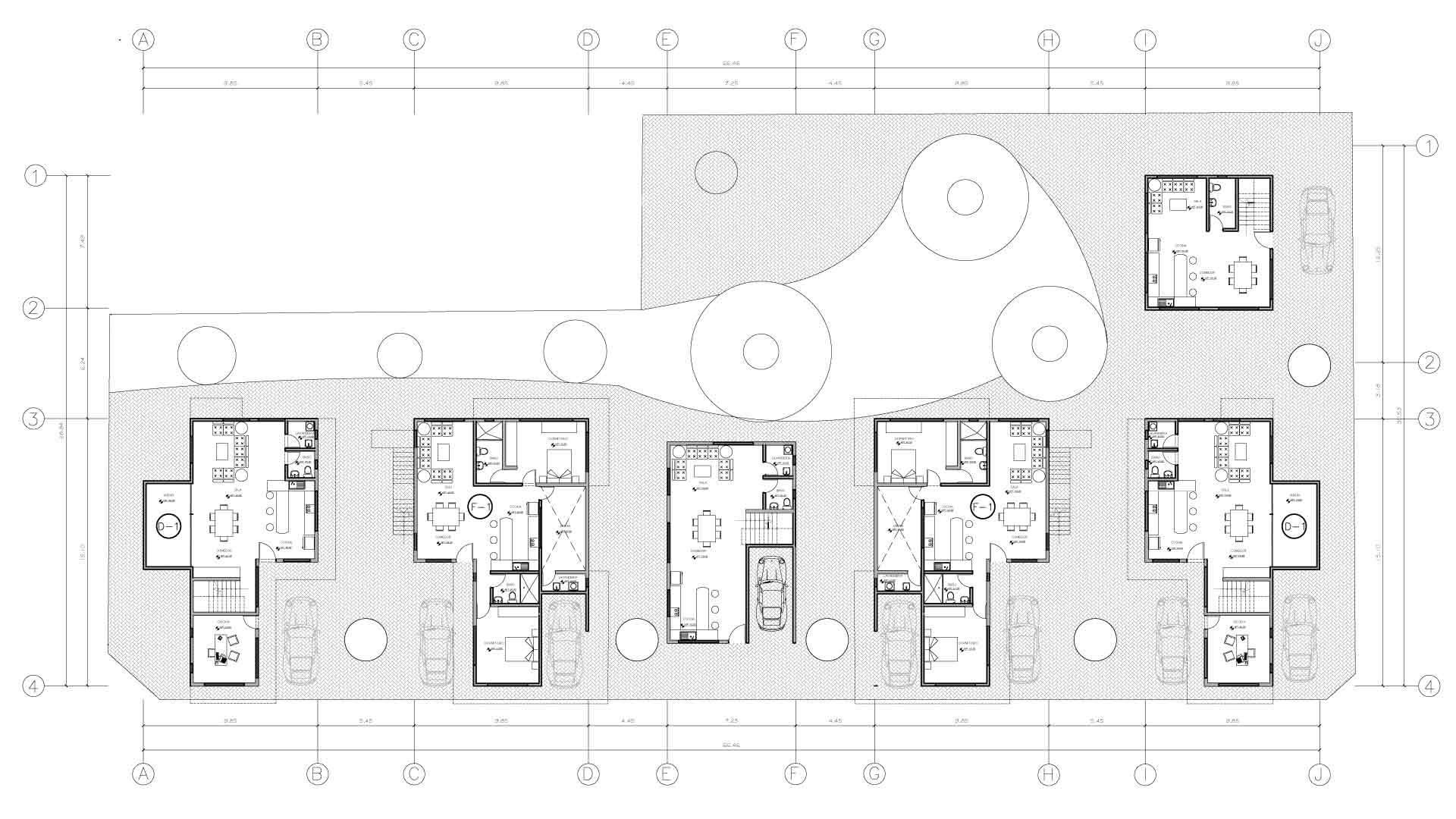
Mi proyecto se basa en 6 espacios principales, en donde están contenidos viviendas tipo dúplex y flats, las cuales se relacionan unas con otras, y producen recorridos interiores que generan una experiencia completa.

Los espacios fueron creados por figuras ortogonales enlazadas unas con otras, de manera que todas las viviendas sean una sola unidad. La flexibilidad y la adaptabilidad están en la esencia del proyecto, dada su versatilidad, además de su forma de apartase con el entorno.

Este proyecto se llama vivienda de baja densidad, dado que su altura no es mayor a 3 pisos, y contiene gran espacio para la recreación de los usuarios. La combinación de colores utilizados (como el blanco y el negro) dan al proyecto un matiz especial, pues genera amplitud, confort y elegancia en los espacios. Existen 4 tipologías de viviendas en este proyecto, diseñadas para cada usuario, según su preferencia.

Peso

1.2 kg

Dimensiones

45 x 30 x 130 cm

aaaaa

aaaaaa