Vivienda Multifamiliar Butters

Denisse Gozar Soto
Daniel Yep
2024
1
Verticales - Proyecto final
Taller 5
Nivel VII
Residencial
Plaza Butters, Barranco, Lima
1,440.00 m²
915.85 m²

Vivienda Multifamiliar Butters

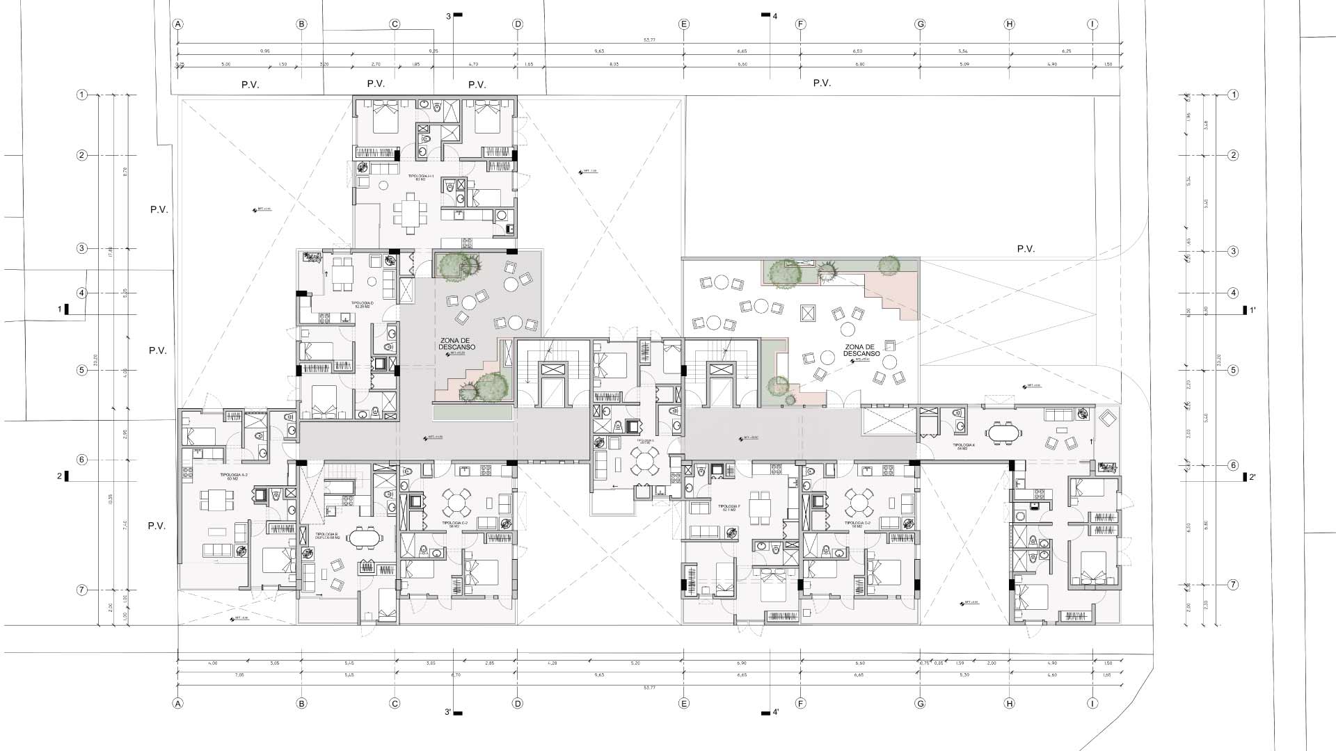
"Casa sostenible"

El diseño de mi proyecto es una armoniosa fusión de modernidad y confort. Cada detalle ha sido meticulosamente analizado para asegurar que cada espacio tenga la proporción y el espacio adecuados. Se ha prestado especial atención a la creación de espacios amplios que satisfacen todas las necesidades posibles de un usuario. Como parte importante de este proyecto, me he esforzado en la sostenibilidad, con el objetivo de reducir la huella de carbono.

Esto se ha logrado a través de la incorporación de luz natural en cada espacio, lo que reduce la dependencia de la iluminación artificial y, por lo tanto, disminuye el consumo de energía. Cada elemento de la casa ha sido diseñado para mejorar la calidad de vida de sus habitantes. Los espacios son cómodos, prácticos y visualmente atractivos, lo cual crea un ambiente que es acogedor y estéticamente agradable.

Peso

1.2 kg

Dimensiones

45 x 30 x 130 cm

aaaaa

aaaaaa