Centro para las Artes San Isidro
"Rehabilitación y ampliación de la casona Soyer"
El proyecto toma como punto de partida la rehabilitación y ampliación de la casona Soyer, al transformarla en un centro cultural de música. La propuesta se enfoca en respetar la preexistencia mediante desfases volumétricos que generan tensión visual. Además, se le otorgó un uso funcional a sus espacios, al adaptarlo a las nuevas necesidades del programa. Estas estrategias lograron una integración armónica entre lo preexistente y lo nuevo.
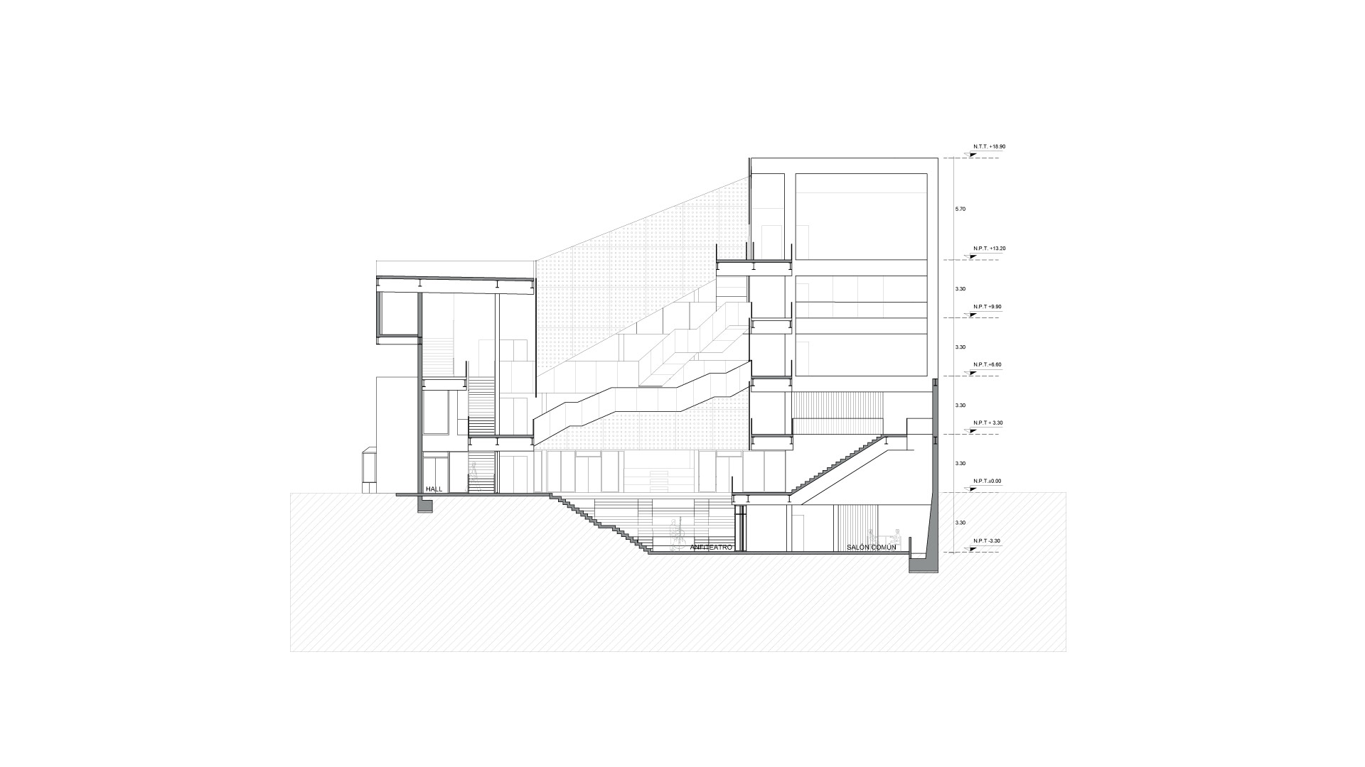
Volumétricamente, el proyecto se eleva de manera diagonal, lo que le otorga dinamismo y permite desarrollar espacios con distintas alturas en el interior. Para ello, se emplearon estrategias de diseño como dobles alturas y relaciones espaciales, lo que permitió jerarquizar los espacios según sus necesidades, para destacar a los principales.
El recorrido dentro del proyecto resulta dinámico gracias a la inclusión de graderías y escaleras estratégicamente ubicadas. Estos elementos no solo facilitan la circulación, sino que también permiten la interacción e integración del recorrido con los distintos espacios. El proyecto busca potenciar las relaciones espaciales para garantizar una experiencia única e interactiva en el ámbito cultural y musical.










