Ludoteca en el Olivar
"Expansión orgánica que se integra al entorno natural"
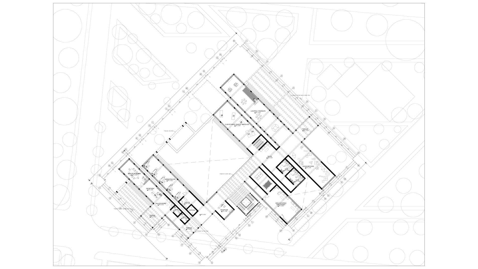
La ludoteca en el parque El Olivar se concibe como un espacio mágico y educativo, diseñado para estimular la imaginación y el desarrollo integral de los niños. Tomando como punto de partida las líneas guía de los edificios preexistentes, se propone una expansión orgánica que se integra armoniosamente al entorno natural del parque. Los nuevos volúmenes, con formas ortogonales y colores vibrantes, invitan a la exploración y el juego libre.
Los espacios interiores, flexibles y modulares están diseñados para adaptarse a las necesidades cambiantes de los niños y fomentar la interacción social. Se incluyen áreas temáticas como una biblioteca, talleres de dibujo y pintura, un espacio de juegos motores y plazas al aire libre para actividades físicas.
De esta manera, la ludoteca se convierte en un referente de arquitectura infantil, donde la sostenibilidad y la innovación se unen para crear un espacio de aprendizaje único. Al integrar elementos naturales, como jardines verticales y charlas sobre el medioambiente, se promueve la conciencia ambiental y se reduce el impacto ambiental de la construcción. Además, la estructura modular y la incorporación de tecnologías educativas permiten una fácil adaptación de los espacios y la creación de nuevas experiencias.






